Оставьте заявку на консультацию
Оставить заявку
Остались вопросы? Напиши нам!

Сестрорецк, ул. Максима Горького, 2

Стиль - летний, свободный

Площадь - 70 м²

О проекте «Сестрорецк, ул. Максима Горького, 2»

Летняя квартира у воды.

Необычный проект для сезонного проживания — летом здесь будет жить семья, в остальное время квартиру планируют сдавать. Мы сознательно избегали массивных систем хранения, сохраняя ощущение легкости.

В кухне-гостиной главным акцентом стала люстра с историей. Природные оттенки стен, теплый керамогранит с подогревом. Спальня получилась светлой и лаконичной, а детская — в нейтральной гамме, универсальной для разных арендаторов.

Интерьер, где каждая деталь продумана для комфорта и смены режимов использования.
← Предыдущий проект
Следующий проект →

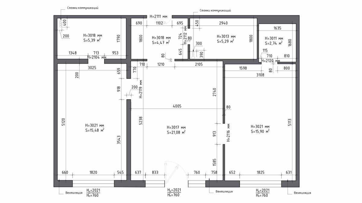
План от застройщика

Утвержденное планировочное решение

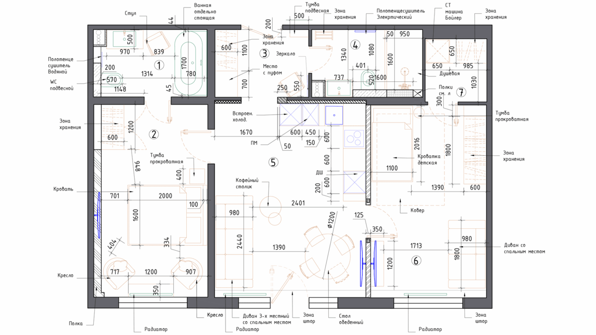
План от застройщика
Утвержденное планировочное решение
/ 16

Оставьте свои контактные данные или свяжитесь с нами удобным для вас способом

Оставьте свои контактные данные или свяжитесь с нами удобным для вас способом

Мне нужен такой дизайн!

ЦЕНЫ
ПРОЕКТЫ
БЛОГ
КОНТАКТЫ
Контакты
Адрес
Время работы
© 2025-2026
Meta Platforms*, а также принадлежащая ей социальная сеть Instagram признана экстремисткой и запрещена в России.
Meta Platforms*, а также принадлежащая ей социальная сеть Instagram признана экстремисткой и запрещена в России.
Будни с 11:00 до 20:00
г. Санкт-Петербург, наб. Обводного канала, д. 134
Только для рекламы и поставщиков
Заказать звонок
ИП БЕРИЯ ВЛАДИМИР КАХАБЕРОВИЧ
ИНН 470326410128
Политика конфиденциальности