Оставьте заявку на консультацию
Оставить заявку
Остались вопросы? Напиши нам!

Рыбацкое

О проекте «Рыбацкое»

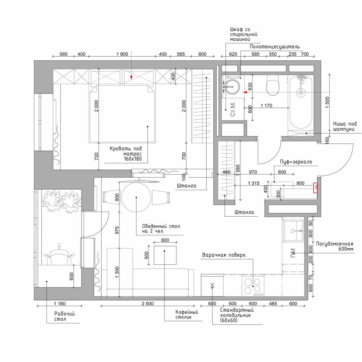
Мы сохранили базовую планировку и часть отделки от застройщика, но добавили индивидуальности. Кухню дополнили верхними шкафами для хранения, обновили фартук и удачно встроили холодильник.

Пространство наполнили цветом и декоративными молдингами, добавив света. Ванную переделали полностью: новая плитка, удобная стиральная машина и продуманные системы хранения.

В спальне использовали яркие оттенки, встроили кровать в гардеробную зону и предусмотрели рабочее место — которое вскоре сменится детской кроваткой. И конечно, не забыли про удобства для кота.

Проект, где каждая деталь учитывает будущие изменения в жизни молодой семьи.
← Предыдущий проект
Следующий проект →

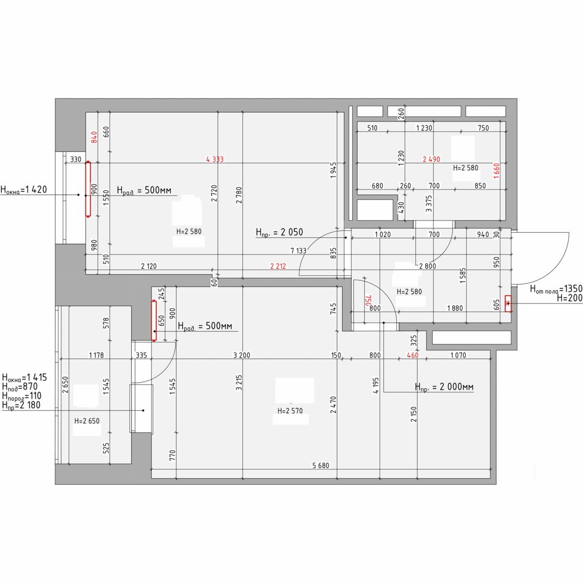
План от застройщика

Утвержденное планировочное решение

План от застройщика
Утвержденное планировочное решение
/ 21

Оставьте свои контактные данные или свяжитесь с нами удобным для вас способом

Оставьте свои контактные данные или свяжитесь с нами удобным для вас способом

Мне нужен такой дизайн!

ЦЕНЫ
ПРОЕКТЫ
БЛОГ
КОНТАКТЫ
Контакты
Адрес
Время работы
© 2025-2026
Meta Platforms*, а также принадлежащая ей социальная сеть Instagram признана экстремисткой и запрещена в России.
Meta Platforms*, а также принадлежащая ей социальная сеть Instagram признана экстремисткой и запрещена в России.
Будни с 11:00 до 20:00
г. Санкт-Петербург, наб. Обводного канала, д. 134
Только для рекламы и поставщиков
Заказать звонок
ИП БЕРИЯ ВЛАДИМИР КАХАБЕРОВИЧ
ИНН 470326410128
Политика конфиденциальности