Оставьте заявку на консультацию
Оставить заявку
Остались вопросы? Напиши нам!

ЖК «Малоохтинская»

Стиль - современная эклектика

Площадь - 80 м²

О проекте ЖК «Малоохтинская»

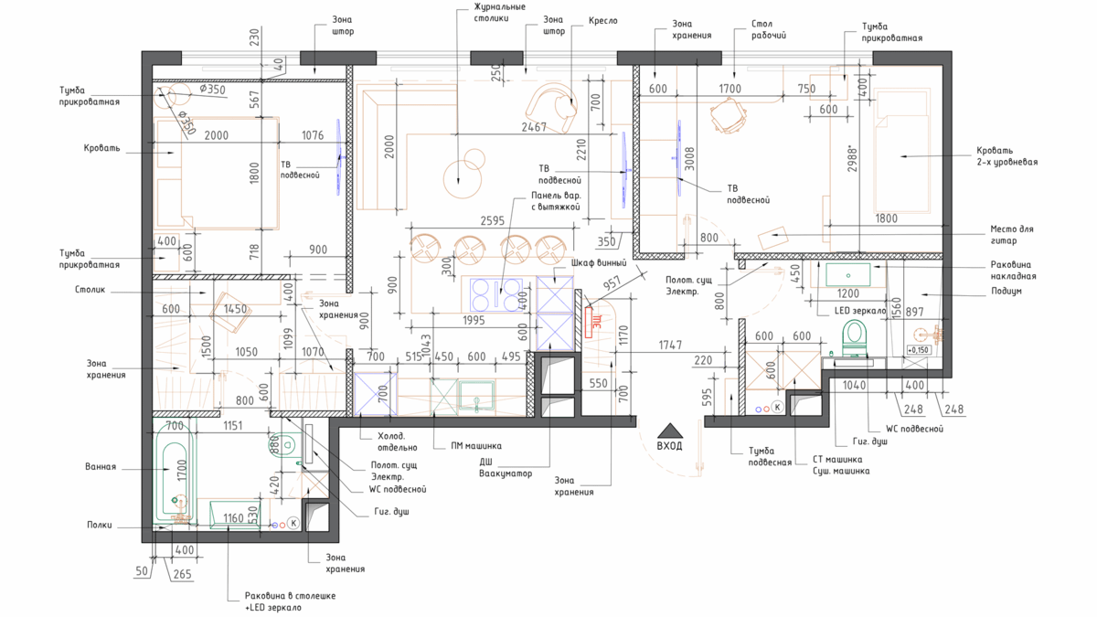
Квартира для семьи с двумя мальчиками. Мы начали проект за полгода до сдачи, когда заказчики решили сначала подобрать образы, а потом адаптировать чертежи. Главным условием была двухъярусная кровать в детской, удобная спальня с гардеробом и рабочим местом, а также минимальное количество молдингов - хотя в итоге мы немного отступили от этого правила.

Получив полную свободу в остальном, мы полностью изменили пространство: создали два санузла, организовали гардеробную в спальне и оборудовали кухню с островом. Для разновозрастных мальчиков (11 и 18 лет) мы постарались создать интерьер, который будет одновременно функциональным и стильным.
← Предыдущий проект
Следующий проект →

План от застройщика

Утвержденное планировочное решение

План от застройщика
Утвержденное планировочное решение
/ 20

Оставьте свои контактные данные или свяжитесь с нами удобным для вас способом

Оставьте свои контактные данные или свяжитесь с нами удобным для вас способом

Мне нужен такой дизайн!

ЦЕНЫ
ПРОЕКТЫ
БЛОГ
КОНТАКТЫ
Контакты
Адрес
Время работы
© 2025-2026
Meta Platforms*, а также принадлежащая ей социальная сеть Instagram признана экстремисткой и запрещена в России.
Meta Platforms*, а также принадлежащая ей социальная сеть Instagram признана экстремисткой и запрещена в России.
Будни с 11:00 до 20:00
г. Санкт-Петербург, наб. Обводного канала, д. 134
Только для рекламы и поставщиков
Заказать звонок
ИП БЕРИЯ ВЛАДИМИР КАХАБЕРОВИЧ
ИНН 470326410128
Политика конфиденциальности