Оставьте заявку на консультацию
Оставить заявку
Остались вопросы? Напиши нам!
брутальный интерьер квартиры
брутальный интерьер квартиры

ЖК «Образцовый квартал»

О проекте ЖК «Образцовый квартал»

Нестандартный подарок — дизайн-проект от лучшего друга. Потолки 5,5 метров сразу задали масштаб: здесь можно развернуться по-настоящему. Четкий бриф — только мужское пространство: для работы с музыкой, встреч с друзьями, без лишних компромиссов. Сохранили первозданную высоту потолков — это стало главной фишкой проекта. Вписали второй ярус с продуманной конструкцией. Лестница на несущей стене с подсветкой, а под ней — неожиданный оазис для кактусов с автополивом. Скрытая гардеробная, минималистичная кухня, балкон, ставший частью гостиной. Темная палитра, индустриальные нотки, ничего лишнего. Интерьер, который как хороший костюм — сидит идеально.
← Предыдущий проект
Следующий проект →

Стиль - лофт

Площадь - 40 м²

со вторым уровнем 82.5 м²

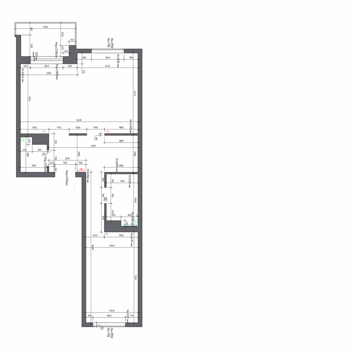
План от застройщика

Утвержденное планировочное решение

План от застройщика
Утвержденное планировочное решение
/ 15

Оставьте свои контактные данные или свяжитесь с нами удобным для вас способом

Оставьте свои контактные данные или свяжитесь с нами удобным для вас способом

Мне нужен такой дизайн!

ЦЕНЫ
ПРОЕКТЫ
БЛОГ
КОНТАКТЫ
Контакты
Адрес
Время работы
© 2025-2026
Meta Platforms*, а также принадлежащая ей социальная сеть Instagram признана экстремисткой и запрещена в России.
Meta Platforms*, а также принадлежащая ей социальная сеть Instagram признана экстремисткой и запрещена в России.
Будни с 11:00 до 20:00
г. Санкт-Петербург, наб. Обводного канала, д. 134
Только для рекламы и поставщиков
Заказать звонок
ИП БЕРИЯ ВЛАДИМИР КАХАБЕРОВИЧ
ИНН 470326410128
Политика конфиденциальности