Оставьте заявку на консультацию
Оставить заявку
Остались вопросы? Напиши нам!
индустриальный интерьер с неоном
индустриальный интерьер с неоном

Композиторов, 12

О проекте «Композиторов, 12»

К нам обратился молодой человек с понятным запросом: наконец-то привести в порядок квартиру, избавившись от ощущения «строительного долгостроя». Нужен был не глобальный ремонт, а точечное вмешательство. В приоритете - уютная и гостеприимная кухня для частых встреч с друзьями, а также комфорт для полноправного члена семьи — любимой кошки.

Мы сохранили брутальный шарм открытых потолочных коммуникаций, добавили дерзкий цветовой акцент в гостиной и спроектировали максимально эргономичную кухню. Проект доказывает, что даже частичные изменения могут кардинально улучшить атмосферу, превратив «временное» жильё в настоящее личное пространство.
← Предыдущий проект
Следующий проект →

Стиль - современный индустриальный

Площадь - 25 м²

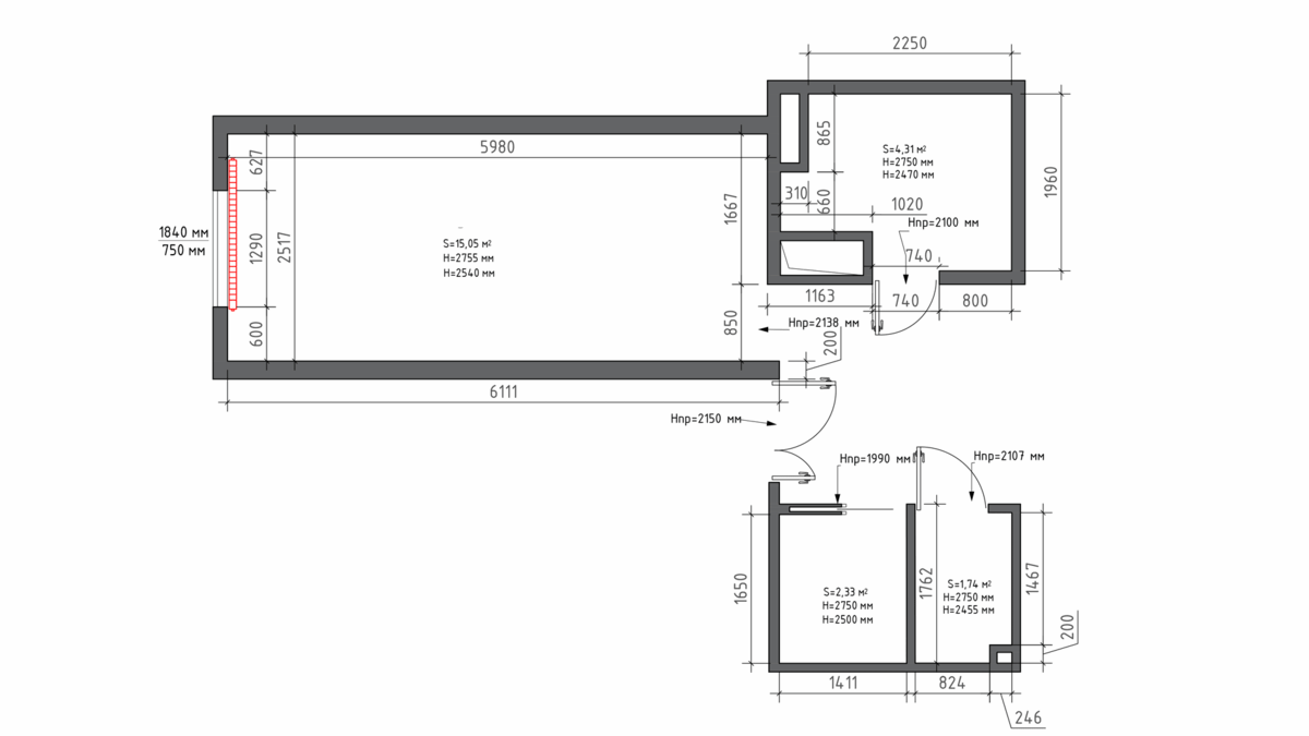
План от застройщика

Утвержденное планировочное решение

План от застройщика
Утвержденное планировочное решение
/ 14

Оставьте свои контактные данные или свяжитесь с нами удобным для вас способом

Оставьте свои контактные данные или свяжитесь с нами удобным для вас способом

Мне нужен такой дизайн!

ЦЕНЫ
ПРОЕКТЫ
БЛОГ
КОНТАКТЫ
Контакты
Адрес
Время работы
© 2025-2026
Meta Platforms*, а также принадлежащая ей социальная сеть Instagram признана экстремисткой и запрещена в России.
Meta Platforms*, а также принадлежащая ей социальная сеть Instagram признана экстремисткой и запрещена в России.
Будни с 11:00 до 20:00
г. Санкт-Петербург, наб. Обводного канала, д. 134
Только для рекламы и поставщиков
Заказать звонок
ИП БЕРИЯ ВЛАДИМИР КАХАБЕРОВИЧ
ИНН 470326410128
Политика конфиденциальности