Оставьте заявку на консультацию
Оставить заявку
Остались вопросы? Напиши нам!
интерьер квартиры на дубровке
интерьер квартиры на дубровке

Магазин одежды

О проекте «Магазин одежды»

Этот проект мы создавали совместно с Арх. Студией СМД проект. Наши клиенты пришли без строгого технического задания, больше с пожеланиями: им хотелось красоты, проработки архитектурных деталей и комфортного пространства.

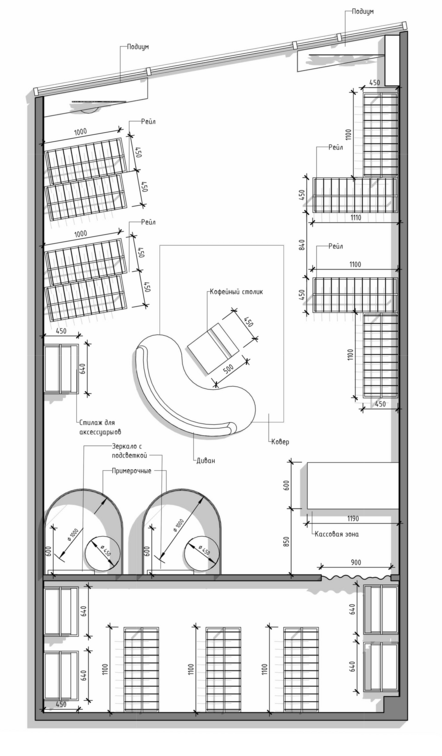
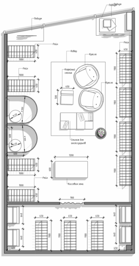
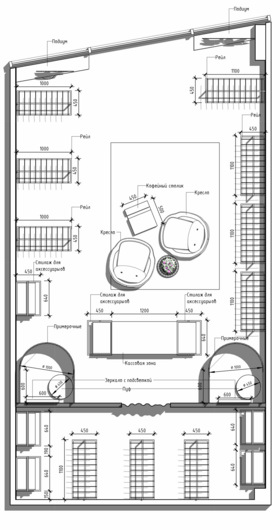
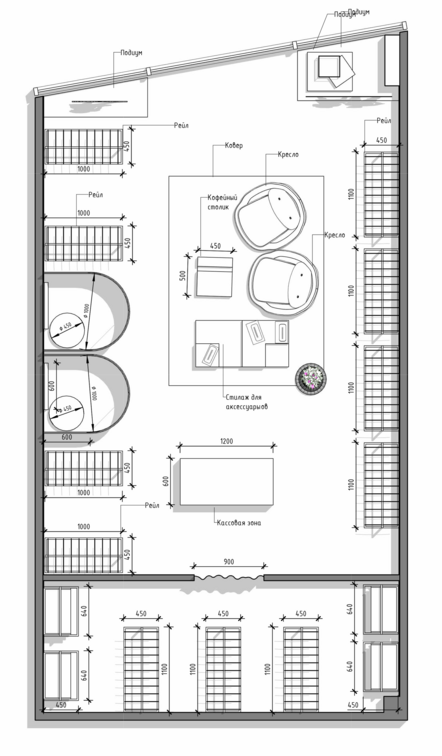
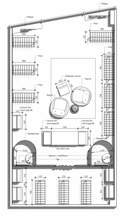
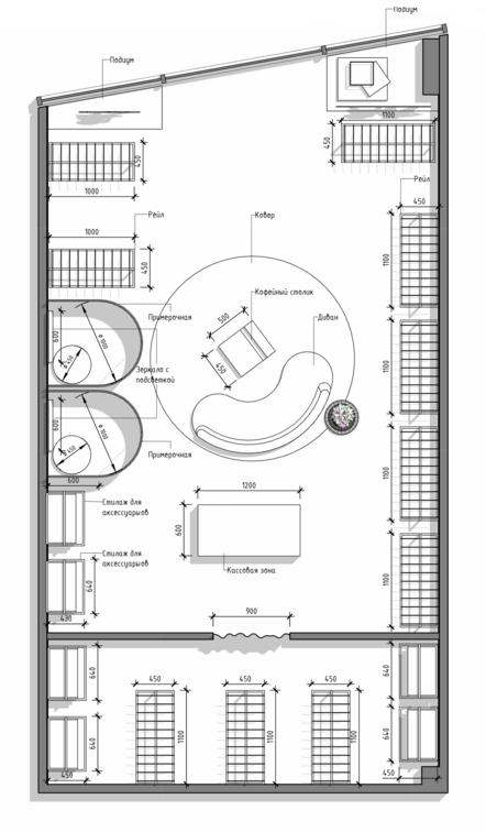
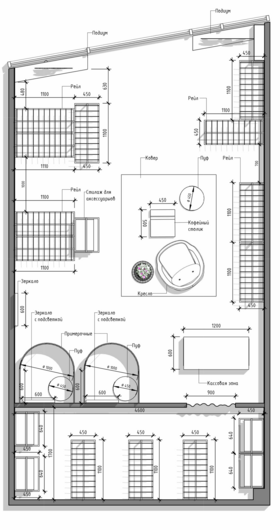
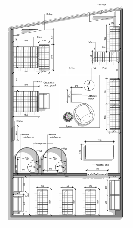
Первым этапом работы стала расстановка оборудования. Мы нашли реальные размеры металлических полуколец для примерочных, чтобы их можно было без проблем приобрести, и тщательно проверили высоту монтажа. Ориентируясь на цветовые предпочтения заказчика, мы собрали коллаж, в котором он отметил все понравившиеся решения.

Визуализации мы сделали всего за 2 дня, понимая, что в коммерческом проекте важна скорость без потери качества. Все пожелания были учтены, и визы приняли с первого раза. Сразу после согласования мы отправили планы и визуализации смежникам, а сами сосредоточились на разработке архитектурных решений.

Проект завершили общими усилиями всего за неделю, создав функциональное пространство с полукруглыми примерочными, приставными зеркалами и готовым оборудованием, которое идеально вписалось в концепцию.
← Предыдущий проект
Следующий проект →

Стиль - скандинавский минимализм

Площадь - 40 м²

Утвержденное планировочное решение

/ 11

Оставьте свои контактные данные или свяжитесь с нами удобным для вас способом

Оставьте свои контактные данные или свяжитесь с нами удобным для вас способом

Мне нужен такой дизайн!

ЦЕНЫ
ПРОЕКТЫ
БЛОГ
КОНТАКТЫ
Контакты
Адрес
Время работы
© 2025-2026
Meta Platforms*, а также принадлежащая ей социальная сеть Instagram признана экстремисткой и запрещена в России.
Meta Platforms*, а также принадлежащая ей социальная сеть Instagram признана экстремисткой и запрещена в России.
Будни с 11:00 до 20:00
г. Санкт-Петербург, наб. Обводного канала, д. 134
Только для рекламы и поставщиков
Заказать звонок
ИП БЕРИЯ ВЛАДИМИР КАХАБЕРОВИЧ
ИНН 470326410128
Политика конфиденциальности